


















Imobil cu 2 apartamente cu CF, acces și contorizare separate, pretabil ca locuință pentru 1-2 familii, locuință plus afacere, sediu social, cabinete sau orice altă folosință favorizată de poziția și caracteristicile proprietății.
Proprietatea este situata în Turnișor, pe strada Trandafirilor, într-o zonă cu acces facil, stație de autobuz aproape și suficiente locuri de parcare.
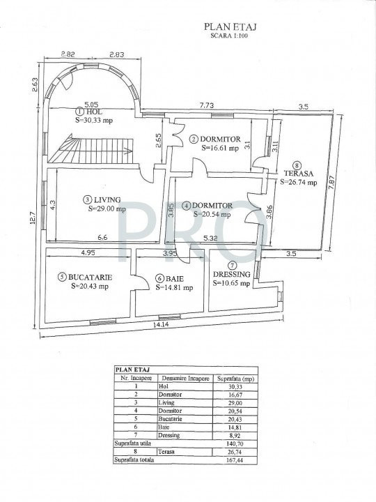
Casa are suprafața utilă de 280 mp desfășurată pe 2 niveluri, fiecare compartimentat în 3 camere, bucătărie, baie, dressing/debara, hol și terasă.
O scară interioară amplă, excelent realizată arhitectural, asigură legătura între niveluri și permite separarea acestora.
Podul este înalt, mansardabil.
Imobilul are structura din beton armat, pereții din cărămidă termoizolați în exterior, acoperiș cu țiglă, ferestrele și ușile exterioare termoizolante.
Fiecare detaliu de execuție și fiecare material, au fost atent alese pentru a asigura trăinicia construcției.
Finisajele interioare au eleganța clasică a tâmplăriei, placajelor și pardoselilor din lemn masiv și piatră naturală.
Orientarea casei spre Sud-Est înseamnă, pe lângă o panoramă frumoasă spre munți, confort termic și soare din plin.
Proprietatea deține 428 mp teren cu 27 m front stradal, împrejmuit, cu poartă de acces auto, iar o parte din terenul liber poate fi amenajat ca parcare.
Anexa, poate fi păstrată pentru depozitare sau transformată în garaj.
Casa se vinde parțial mobilată și poate fi achiziționată cu credit ipotecar.